Дом из клееного бруса - эффективное решение дома из натуральных материалов

Строительство дома из клееного бруса
ИСХОДНЫЕ ДАННЫЕ И ПРЕОБРАЗОВАНИЯ
План домаДля реализации задуманного заказчик обратился в строительную фирму Бобер . На участке, где предстояло строить, стояли старый дом, покосившийся сарай, деревянная уборная, бетонные разграничительные столбы, забор. Все это решили убрать. А то, что не подлежало демонтажу, – модернизировать. Так и появились на участке новые ландшафтные светильники из старых полуразрушенных столбов, бассейн, навес для машины, а позже – беседка и скамейки.
План домаНовый двухэтажный дом из деревянного профилированного бруса общей площадью 223, 4 м2, жилой – 109, 8 м2, вписали в освободившееся пространство. Несмотря на небольшую площадь (всего шесть соток), дом из деревянного профилированного бруса легко вписался в ландшафт. В облике его сочетаются дерево, облицовочная плитка, натуральный камень, битумная черепица. Так, бело-розовый цоколь и покрытие веранды смягчают монотонность темных деревянных досок фасада. А мягкая кровля зеленого цвета и искусственный камень дорожек объединяют строение с площадками, расположенными на участке. Запоминающий вид строению придают треугольные соединения крыши, контрастирующие с прямоугольными элементами фасада: окнами, опорами и навесами возле дома.
Участок возле дома многофункционален. Планировка представляет собой продуманную систему, в которой практичность и красота взаимосвязаны. К участку, дому и хозяйственному блоку обеспечен удобный подъезд. Навес для машины примыкает к боковой стене жилого дома. Территория имеет уклон в сторону дороги и разделена на три функциональные зоны: жилую (с домом, въездом, площадкой и навесом для машины), спортивную (с бассейном) и хозяйственную (с садом, хозблоком и мусоросборником).

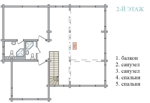
СТРУКТУРА ДОМА
Структура домаДом внутри двухуровневый, мансардного типа. Разработчики предпочли стиль кантри с элементами эклектики. Поэтому решили сделать пространство первого этажа максимально открытым и устроить еще один вход из гостиной на летнюю террасу. Так в доме появились два входа из сада – боковой («зимний»), и основной («летний»). Из небольшого тамбура через прихожую можно попасть в узкий холл с лестницей, ведущей на второй этаж. На первом этаже находится объединенное пространство гостиной, которое включает в себя столовую, каминную и кухонную зоны, а также гостевые комнаты и ванную. Второй этаж (на него ведет одномаршевая Г-образная деревянная лестница) – приватный (балкон-холл, спальня, ванная и кабинет). Особенность дома – двухсветная гостиная, которая представляет собой практически единое двусветное пространство с частичным перекрытием первого этажа над каминной зоной. Стремясь сделать гостиную комфортной, ее разделили на две зоны: кухню-столовую и уютный каминный зал с диванным уголком, журнальным столиком и массивным камином с высокой трапециевидной трубой, который Бассейндоминирует в интерьере. Понижение уровня потолка над камином выделяет это место среди остальных. Портал выполнен по специальному проекту из кирпича, оштукатурен и облицован плиткой под кирпич. В его отделке также использованы камень, дерево и штукатурка. Противоположное крыло интерьера занимает кухня-столовая. Барная стойка обозначает границу между рабочей зоной кухни и столовой. В центре этой зоны — обеденный стол. Естественным переходом между внутренним пространством первого этажа и природной средой стала открытая терраса в виде перголы, из которой открывается вид на сад и бассейн. Второй этаж полностью отдан частной жизни. Здесь находятся две спальни и ванная. Комнаты расположены друг напротив друга. Обе выходят в пространство Т-образного холла, из которого можно пройти в ванную.

КОНСТРУКЦИИ И МАТЕРИАЛЫ
КонструкцияДом из соснового бруса легче кирпичного, тем не менее, торфяная почва и неглубокое залегание грунтовых вод определили выбор свайного фундамента. Подвального помещения в доме нет.
Наружные и внутренние стены сложены из трехслойного клееного профилированного бруса толщиной 165 мм. Брусья обработаны антисептикомантипиреном, который защищает материал и конструкции от вредного воздействия природных факторов. Основу декоративного покрытия стен составляет грунтовка, на которую нанесен лак. Благодаря тщательной подгонке брусьев и специальной прокладке, размещенной между ними при сборке, стены герметичны и выглядят как монолитная конструкция, а потому не нуждаются в дополнительной отделке.
Теплоизоляционные свойства стен сравнимы с кирпичной кладкой. Стены «дышат». А специальные методы стыковки и фиксации брусьев делают строение необыкновенно теплым и уютным.
Междуэтажные перекрытия – из деревянных балок. В доме нет чердака, поэтому крышу утеплили минераловатой толщиной 50 и 150 мм. В конструкции кровли использована гидро- и ветроизоляционная пленка. Стропила в мансарде — из горизонтально клееного бруса высотой 210 мм, шириной 78 мм и длиной 12 м. Они опираются на верхние венцы стен и промежуточные стойки.
В качестве кровельного покрытия использовали мягкую битумную черепицу.

ТЕХНИЧЕСКОЕ ОСНАЩЕНИЕ
Открытая балюстрадаВ доме установлена система водяного отопления. Во всех жилых помещениях есть чугунные радиаторы, а на кухне, в душевой на первом этаже и в ванной на втором смонтированы теплые полы. Все инженерные системы спрятаны в потолок или специальные короба. Отопление осуществляется с помощью газового двухконтурного котла. Для горячего водоснабжения установлен электрический бойлер. Он имеет две ступени мощности: одна используется в летний период, когда потребность в горячей воде снижается, другая – для подогрева воды в холодное время года.

О ПРОИЗВОДСТВЕ СОВРЕМЕННОГО КЛЕЕНОГО БРУСА
Производство клееного бруса состоит из таких этапов:

  • Сначала бревно распиливают на доски, которые затем сушат. После этого удаляют дефекты (черные сучки, гниль, обзол и пр.). Затем заготовки склеивают в ламели, сдавливая их специальным прессом, калибруют и склеивают в брус определенной толщины. Последний обрабатывают на станке, чтобы придать ему необходимый профиль и нумеруют. На торцах бруса делают угловые нарезки, или «чашки». Профилированный брус имеет сверху трапециевидный гребень, а снизу паз такой же формы. Стыки жестко связывают брус с выше- и нижележащими брусьями. Тем не менее, дополнительная герметизация и теплоизоляция (уплотнитель) ему не помешают.
  • Деревянные части обрабатываются антисептическими пропитками и лаками на водной основе, которые препятствуют образованию грибков.
  • По цене клееный брус на 25-30% дороже простого.

ОСОБЕННОСТИ МОНТАЖА СТЕН
КонструкцияСтены из профилированного бруса складывали повенечно. Венец – это один ряд бревен. По периметру фундамента строители установили подкладочные доски из твердых пород дерева (дуба и лиственницы). Два нижних венца прикрепили к фундаменту металлическими анкерами. В последующих венцах для прочности через два-три метра в шахматном порядке установили деревянные нагели. После сборки коробки по углам дома в заранее подготовленные отверстия вставили металлические стяжки, на которые нанизали брусья. При затягивании стяжек венцы плотнее прилегают друг к другу, кроме того, стяжки позволяют принудительно усаживать дерево. Перекрытия прикрепили к стенам при помощи врубки «в чашку»: бревна уложили перпендикулярно стенам так, что они выходят наружу. Врубка маскирует места соединений.
Коробки окон и дверей представляют собой скользящие конструкции. В торце стены вырезают паз, а коробка по бокам имеет Т-образный деревянный дюбель: стена оседает – коробка остается на месте.

Автор благодарит строительную компанию БОБЕР за помощь в подготовке материала

Автор: Елена Галич
Источник: Украинский Строительный Каталог (Секреты успешной стройки)


Строительно-монтажные работы:

 

Вы не зарегистрированные на сайте. Авторизуйтесь или зарегистрируйтесь пожалуйста.

Похожие статьи

  • Старый бетон на новый лад. Часть 5

    Добавки — это жидкие или порошкообразные вещества, или элементы, которые добавляются в бетон. Они, благодаря химическому и/или физическому воздействию, влияют на свойства бетона. Мировой опыт показывает, что в 90% производимых типов бетона применяются добавки.

  • История развития рынка недвижимости в Украине 2005 год: Земля и стройка

    Похоже, что революционные изменения становятся у нас не только нормой жизни, но и способом решения любых вопросов. Даже земельных. Так в недалеком будущем на рынке земли в Киеве изменится процедура отвода земельных участков под застройку. Последствия ощутят все — сначала сами застройщики, а потом — граждане, покупающие новые квартиры. И, как всегда, опыт столицы прейдет в регионы, которые рано или поздно пройдут по тому же пути, что и киевляне.

  • Детали частного домостроения

    Планировка и строительство частного дома — задача со многими неизвестными. Существенно все: площадь участка, финансовые возможности владельца, состав его семьи. Из этих составных складывается проектное решение будущего строения. А конечный результат — комфортной и удобный дом — зависит от команды профессионаловстроителей.